Willemoesgade 32, st. th, 2100 København Ø

Da rønnebærtræerne blev sure i Willemoesgade …

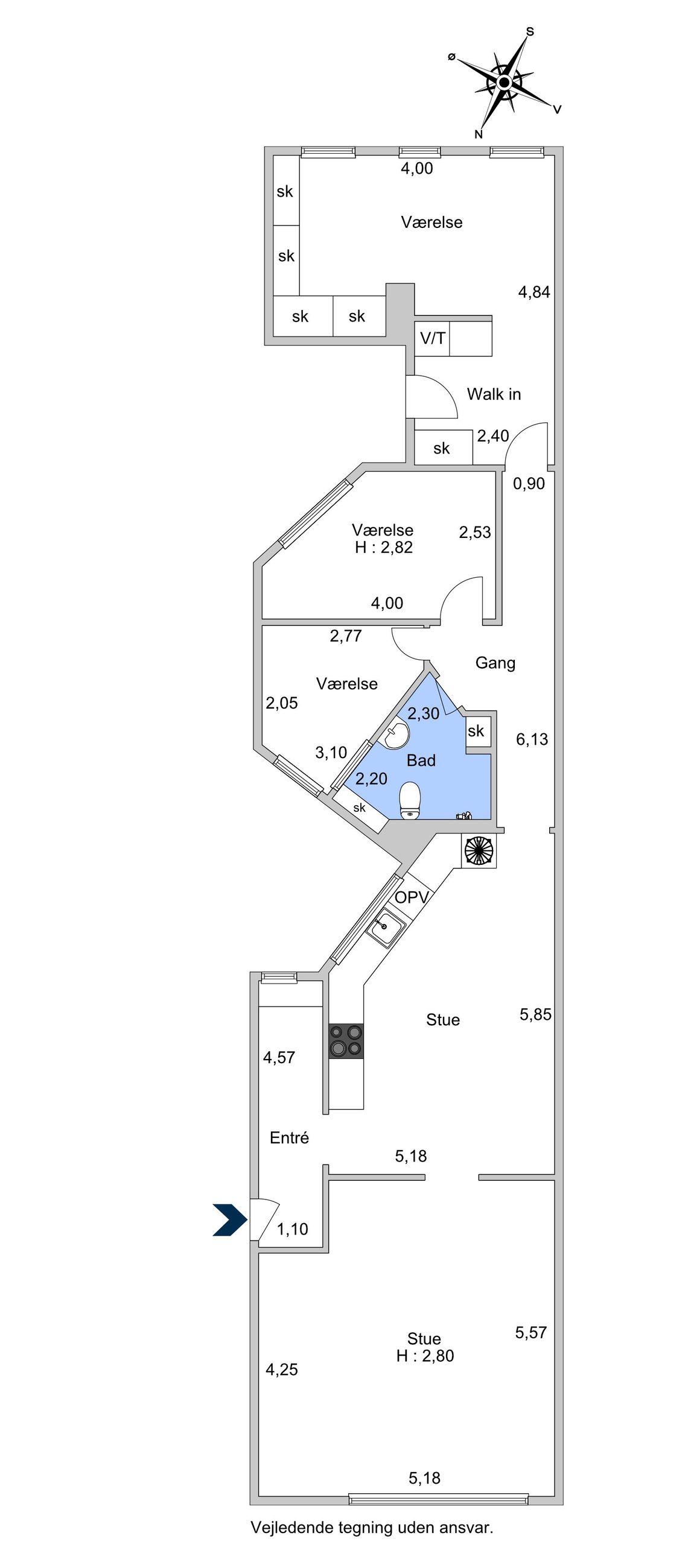
Willemoesgade 32, st. th, København Ø - Plantegning

Specifikationer

Ejerlejlighed
  • Boligareal:143 m2
  • Værelser:5
  • Byggeår:1908
  • Energimærke:
    C

Da rønnebærtræerne blev sure i Willemoesgade …

Rønnebær, det er dem, der bliver sure, og det blev rønnebærtræerne i alléen Willemoesgade i 1980, da den ene side af vejens træer måtte lade livet for at få plads til fjernvarmerør. Den første generation af rønnebærtræer blev plantet i 1910. Gaden er opkaldt efter Peter Willemoes, ja, helten fra Slaget på Reden i 1801. Københavnerne var tilskuere til slaget for enden af Willemoesgade, som den gang var kyst og strand til Øresund. Flere gader i kvarteret har navne efter søhelte, men Willemoesgade er kvarterets absolutte helt, den er gaden med brosten, nye rønnebærtræer mod syd som erstatning for de gamle, og smukke ejendomme fra slutningen af 1800-tallet. 

Ejendommen i nummer 32 er bygget i 1908, og lejligheden i stueetagen er på 143 m2. Nemlig, helt ideel til familien med børn. Willemoesgade er nok den mest stille gade af alle de stille gader på Østerbro. Den er ensrettet med brosten ned mod Østerbrogade og Sortedam Sø. Ikke meget trafik her. Der er græsplæne, legeplads og plads til fællesskab og grill i gården med direkte udgang fra lejligheden. Trygt og godt. Her er fri udsigt ned ad Holsteinsgade. Det er en lækker lejlighed med svensk snedkerkøkken fra Göteborg. Alt stod færdigrenoveret i 2024, alt er bare lækkert, alt er lige til at flytte ind i. Institutioner og gode skoler er lige om hjørnet.

Hvor Østerbro ubetinget er et af de mest populære kvarterer i København, er Willemoesgade den mest populære gade på Østerbro. Verdensklassebeliggenhed. Byen er tæt på, selv Indre By er en gåtur hjem efter en tur i byen. Hvor Østerbro er restauranter, caféer, lækre butikker og Christianiacykler med børn og indkøb på ladet, er Nordhavn på den anden side af Strandboulevarden et spændende, maritimt kanalmiljø. Områdets gamle industri er tænkt ind i den nye arkitektur. Nyt møder gammelt, havn møder by. Havnebad, butikker, caféer og shopping blander sig med boliger og gør området til en selvstændig bydel.

Udforsk andre boliger af samme type
Ejerlejlighed

NYHED
Malmøgade 12, 5. tv, København Ø

Ejerlejlighed

Malmøgade 12, 5. tv, København Ø

Pris

14.995.000 DKK

Boligareal

138 m2

Værelser

4

Kroghsgade 6, 2. th, København Ø

Ejerlejlighed

Kroghsgade 6, 2. th, København Ø

Pris

8.995.000 DKK

Boligareal

85 m2

Værelser

3

Hjørringgade 7, 4. tv, København Ø

Ejerlejlighed

Hjørringgade 7, 4. tv, København Ø

Pris

4.700.000 DKK

Boligareal

52 m2

Værelser

2