I.H.Mundts Vej 22, 2830 Virum
Funkis kender vi, funkis kan vi tale om …
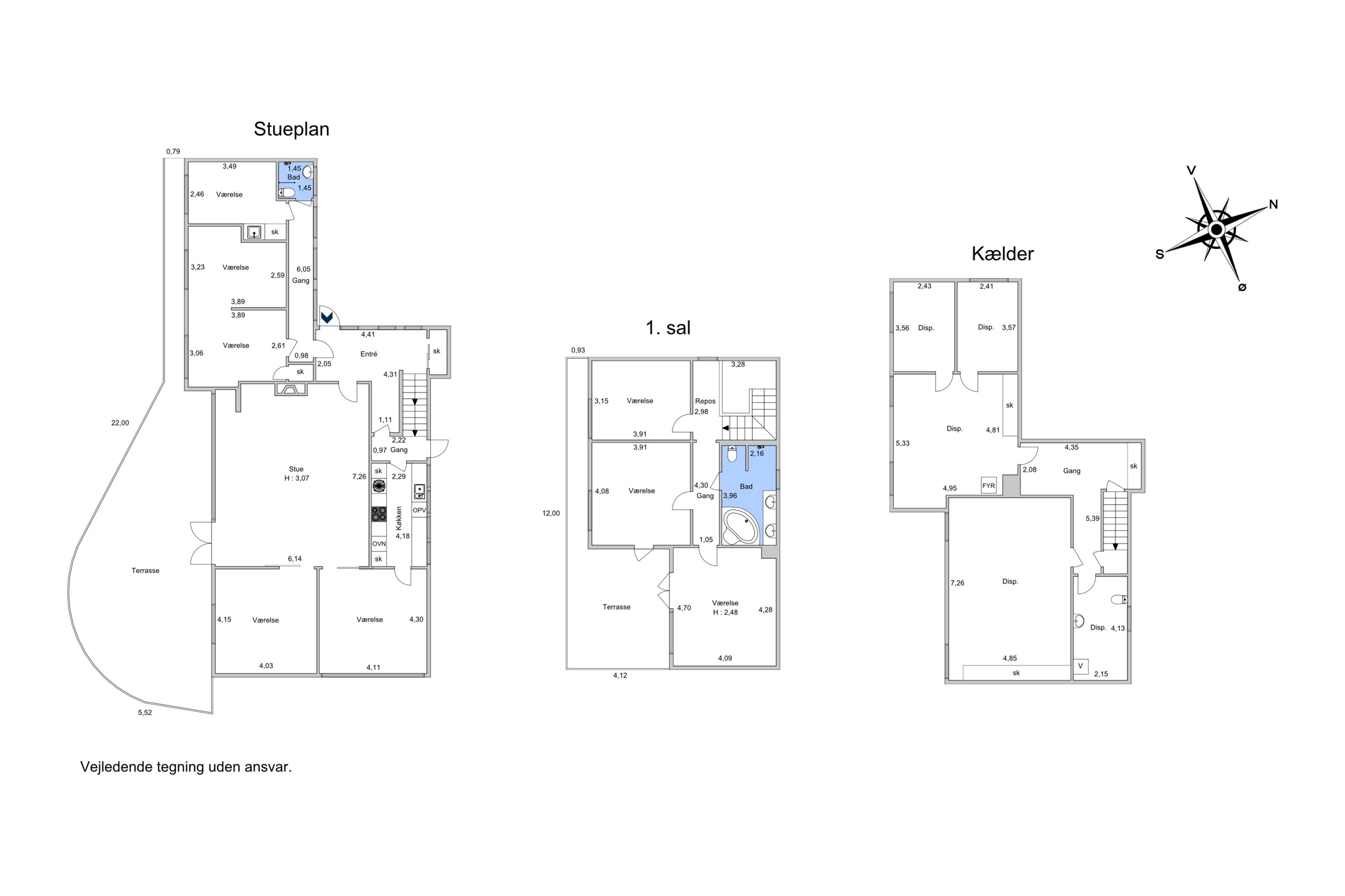
Specifikationer
Villa
- Pris:9.995.000 DKK
- Ejerudgift: 7.742 DKK
- Boligareal:271 m2
- Grundareal:907 m2
- Kælder:124 m2
- Værelser:8
- Garage:20 m2
- Byggeår:1939
- Energimærke:E
Funkis kender vi, funkis kan vi tale om …
Der er en indbygget glemsomhed i arkitekturhistorien, fordi de færreste kender den i dybden, derfor taler vi ikke om de tidstypiske streger. Men funkis kender vi. Den har sin tid i 1930’erne, altså ret ung. Stregerne er simple, de er enkle uden staffage, krummelurer og pynt, nemme at huske, nemme at tale om. Og vi kender dem, fordi arkitekter som Arne Jacobsen og Mogens Lassen tegnede dem, ja, de gjorde dem udødelige.
Så er dagens motion hjemme
På I.H. Mundts Vej 22 i Virum står et funkishus fra 1939. Med store vinduer er det et hus med masser af lys, og med 271 m2 er det et hus med masser af plads. Det er et velholdt hus, som nemt kan opdateres til et moderne hus anno 2025. Det ligger som et markant hus på vejen helt naturskønt bare få hundrede meter fra Lyngby Sø og ikke langt fra Sorgenfri Station. Grunden er på 907 m2 med en have, som er nem at passe. Søen er en del af Mølleå-systemet med 2 øer midt idet hele, Storeholm og Lilleholm. Der er mange stier rundt om søen, som eksempelvis Prinsessestien eller Hjertestien, som følger søbredden og urbaniserede områder. Ja, løb eller gå turen, så er dagens motion hjemme.
De glade 1920’ere
Dagligvarebutikker ligger for enden af vejen, hvor der også er daginstitutioner. Nærmeste skole ligger under halvanden kilometer væk, og så er der offentlig transport inden for kort afstand. Virum begynder sin historie i 1100-tallet. Senere som en kroget hovedgade med gårde og enkelte huse og et gadekær, som er her endnu. Så kom de glade 1920’erne og gjorde Virum til en forstad, hvor jorde blev udstykket til villa- og rækkehuse.
Det var såmænd bare det.
Kontaktperson

Karina Svarrer
Filialchef
Ejendomsmægler MDE
karina@eltoftnielsen.dk
51 16 99 66