Avderødvej 55, 2980 Kokkedal
Trappeløs ét-plans-hesteejendom 25 minutter fra Nørreport Station …
Trappeløs ét-plans-hesteejendom 25 minutter fra Nørreport Station …
Lystgårdene står ikke på skuldrene af hinanden på Avderødvej. Vi er jo på landet, nuvel, men vi er ikke på bøhlandet, altså derude, hvor de berømte krager vender. Naturen fylder meget, det samme gør freden, roen og stjernenatten også, for de store byers lys dominerer ikke himlen i den her del af det østlige Sjælland. Med bare 5 minutter til Kokkedal og 10-15 minutter til Nivå, Rungsted, Vedbæk og Hillerød er civilisationen tæt på, men livet på landet er bare så godt og trygt at komme hjem til. Især for hestefolket.
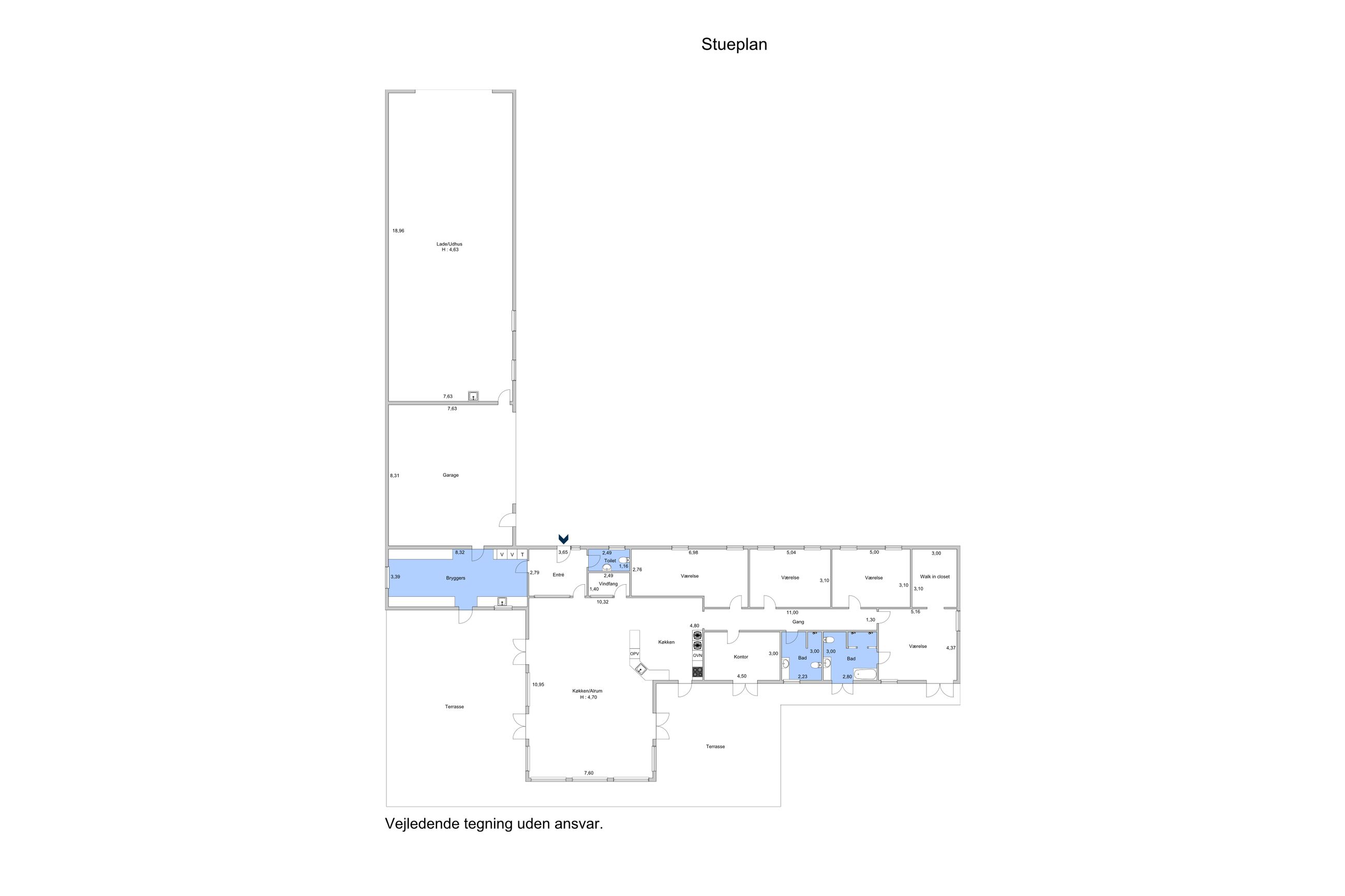
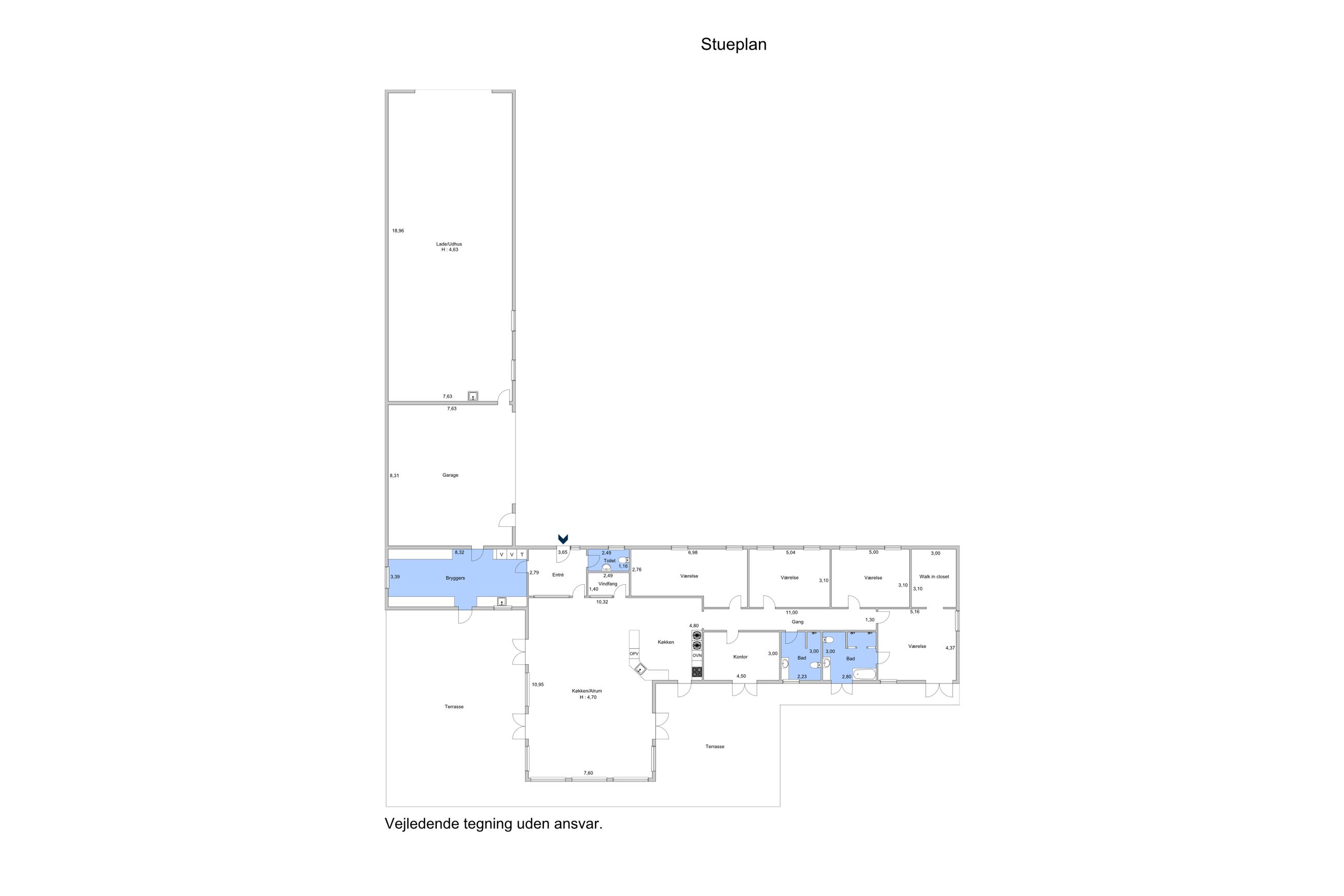
Trappeløs ejendom
Hesteejendommen på Avderødvej 55 er så ny som fra 2023. Med 319 m2 bolig, mange soveværelser, 8 bokse i stalden, ridebane, 2 hektar jord og 161 m2 værksted, er ejendommen en lækkerbisken for familien med mange børn, heste eller biler som hobby og håndværksfag i værkstedet hjemme. Det er en trappeløs ejendom, alt en ét-plans-hesteejendom med åbent til kip og vinduer fra gulv til loft. Altså masser af rum, masser af lys, alt er bare lækkert. Er værkstedet for stort, kan det halve bygges om til udlejning eller flergenerationsbolig. Alt er forberedt og isoleret som helårsbolig. Karlebo ligger lige om hjørnet. Byen har de sidste par år fået et generationsskifte med nye familier, nye børn. Her er institutioner, skole og specialskole. Vi er i landzone med de fordele, der følger med lav ejendomsbeskatning.
Med kystbane, 20 minutter til Nørreport
Postnummeret er 2980 Kokkedal, som har lidt over 15.000 indbyggere. Byen har egen kystbanestation og ligger stort set mellem Helsingør og Hellerup. 20 minutter til Nørreport Station og 40 til lufthavnen, nemt og ligetil. Kokkedal, pudsigt bynavn, men byen fik sit navn fra Kokkedal Slot.
Kontaktperson

Jens Højmann
Partner & filialchef
Ejendomsmægler & valuar MDE
jens@eltoftnielsen.dk
21 62 48 18