Vester Søgade 78, 2. 4, 1601 København V
Masser af udsigt med grønne piletræer og søvand i øjnene...
3. maj, 2026 14:50 - 15:10
Masser af udsigt med grønne piletræer og søvand i øjnene...
Danskere, som vi er flest, kender 2 arkitekter: Arne Jacobsen og Jørn Utzon. Hvad de fleste af os måske ikke ved, er, at begge d’herrer var elever af arkitekt Kay Fisker. Hvor Arne Jacobsen skabte den totale æstetiske oplevelse, byggede Kay Fisker rammerne om det gode liv med mursten, tyngde og ro. Uden Fiskers nøgterne grundstruktur ville dansk arkitektur mangle rygrad. Uden Jacobsen ville den mangle poesi.
Fisker boede i samme opgang
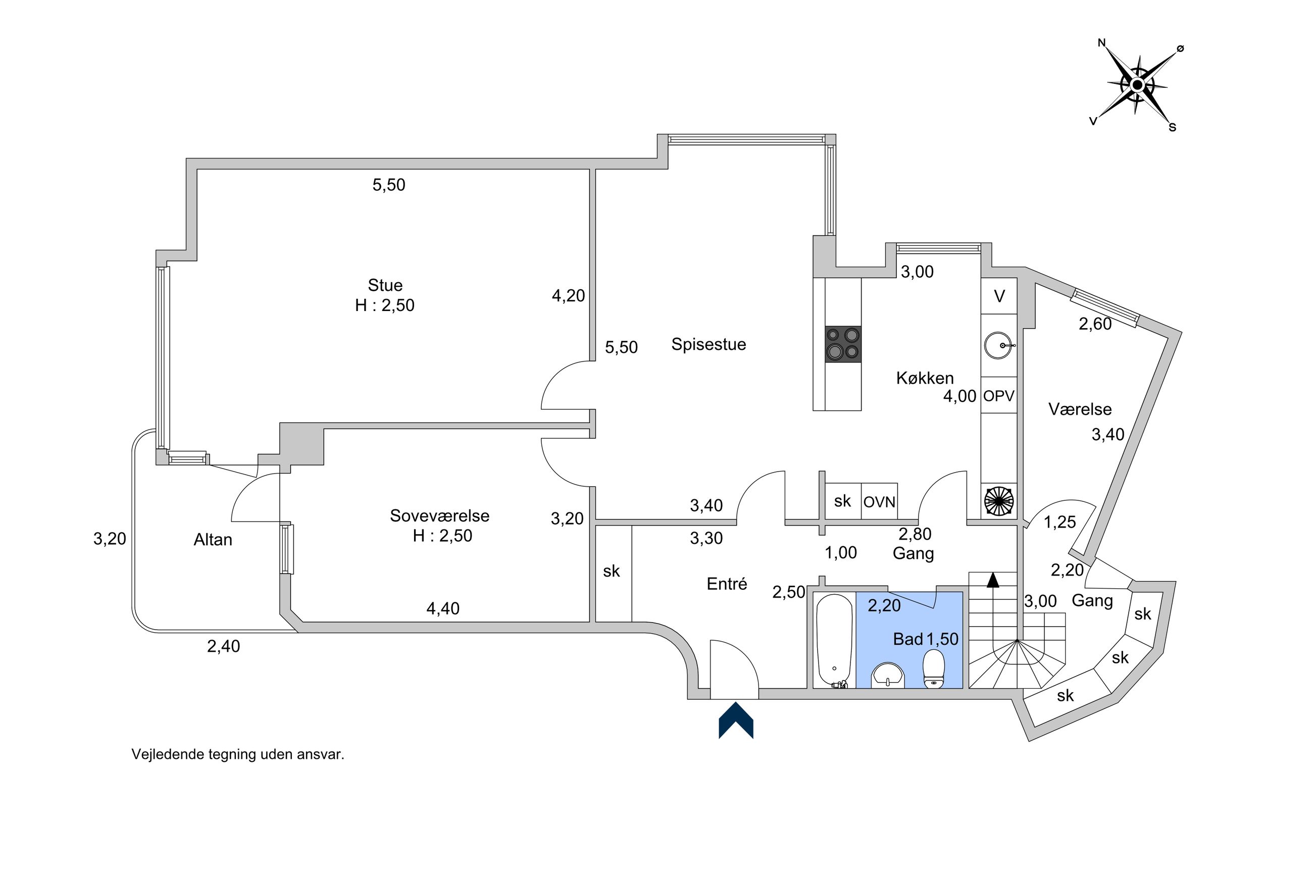
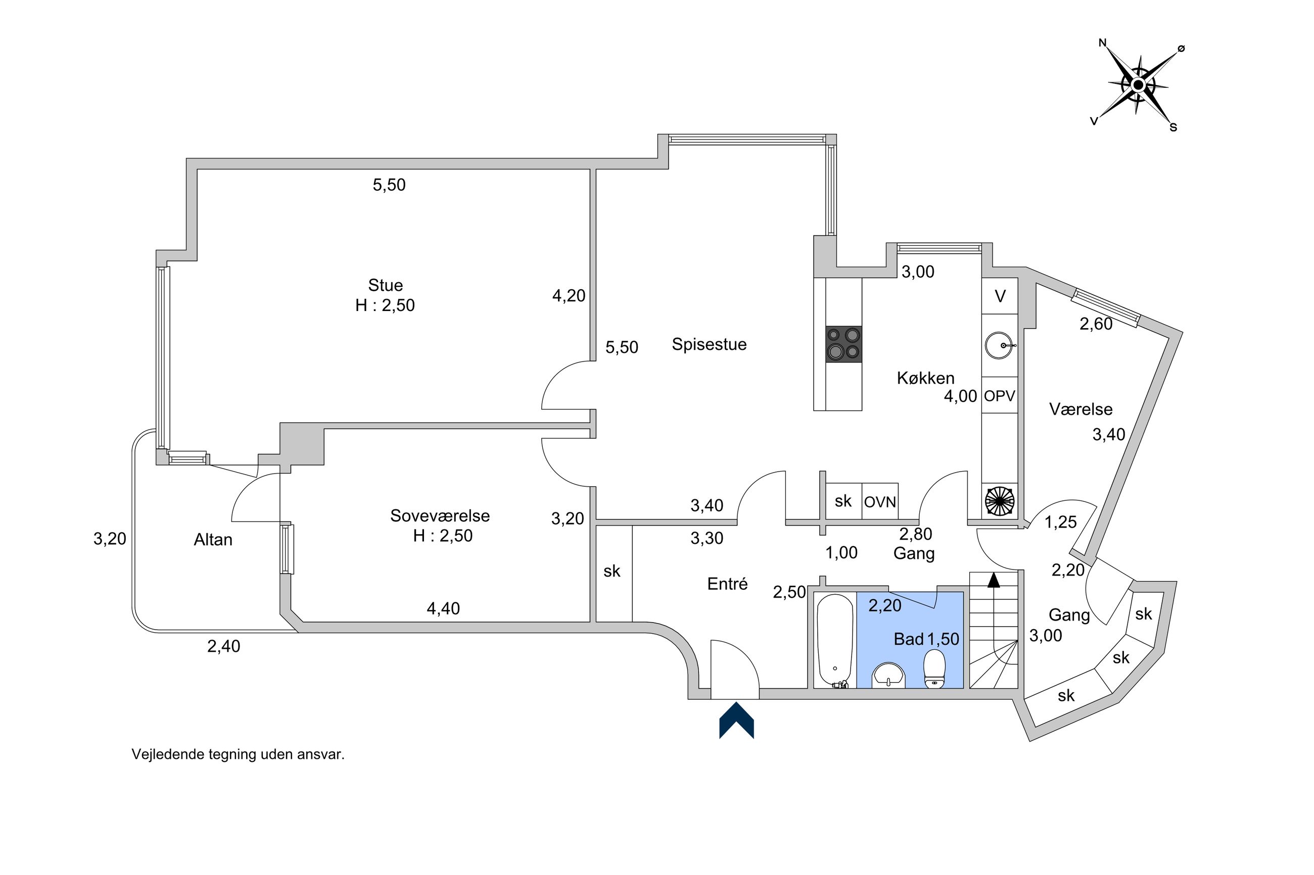
Ejendommen er Vester Søhus med adressen Vester Søgade 78. Den er tegnet af Kay Fisker og bygget i 1938. Typisk for sin tid er ejendommen inspireret af funkis, altså uden dekoration eller lagkagepynt som stuk, rosetter, træudskæringer og høje paneler. Lejligheden på 2. sal er på 130 m2 med en forskydning fordelt til 2 niveauer, hvor nederste niveau er gæsteafdeling. Som gavllejlighed er her åbne vidder overalt, altså masser af lys og masser af udsigt med grønne piletræer i øjnene og Sankt Jørgens Sø, Peblinge Sø, Grevinde Danner og Søpavillonen lige uden for vinduerne. Sikken udsigt. Fisker selv boede i samme opgang på øverste etage. Elevator til fælles tagterrasse med sol hele dagen og de smukkeste solnedgange ned over Frederiksberg. Alt i byen er 5 cykelminutter væk. Ejendommen er fredet. Tak for det.
Der bliver kysset på bænke
Enhver metropol med respekt for sig selv og sin fremtid tilbyder sine borgere et rekreativt supplement til byens puls. For københavnerne er søerne fra Østerbro til Vesterbro det samme som spadsereture, fred og ro og naturoplevelser midt i byen. Børn og voksne giver ænder og svaner mad. Der bliver kysset på bænke og holdt i hånden, og man kan skøjte når vandet bliver stift, som Stampe sagde til Bambi. Tivoli, Torvehallerne og restauranterne er en gåtur lige om hjørnet, det samme er Frederiksberg, som begynder på den anden side af søen.
Kontaktperson

Phillip Siesbye
Salg & Vurdering
siesbye@eltoftnielsen.dk
20 20 77 88