Teglgårdstræde 12B, 1, 1452 København K
Et bondehus i pisserenden med ambiance og masser af plads…
Et bondehus i pisserenden med ambiance og masser af plads…
Sjældent har en så kæk stednavnsbetegnelse fået så charmerende og så modsat en betydning som Pisserenden med de 5 stræder Larsbjørnsstræde, Larslejsstræde, Sankt Peders Stræde, Studiestræde og Teglgårdstræde. Renden burde erstattes med hyggelige. For små og pissehyggelige, det er stræderne i Pisserenden. København bliver ikke ældre end her, og det kække stednavn, det kommer fra den tid, hvor karlene stod i kø i stræderne for at vente på arbejde ude på østerbrogårdene, og hvor de var nødt til at nødtørfte i rendestenen, for ikke at forlade deres plads i køen. Og det var ikke vand, de drak.
Fredet, ingen ejendomsskatter
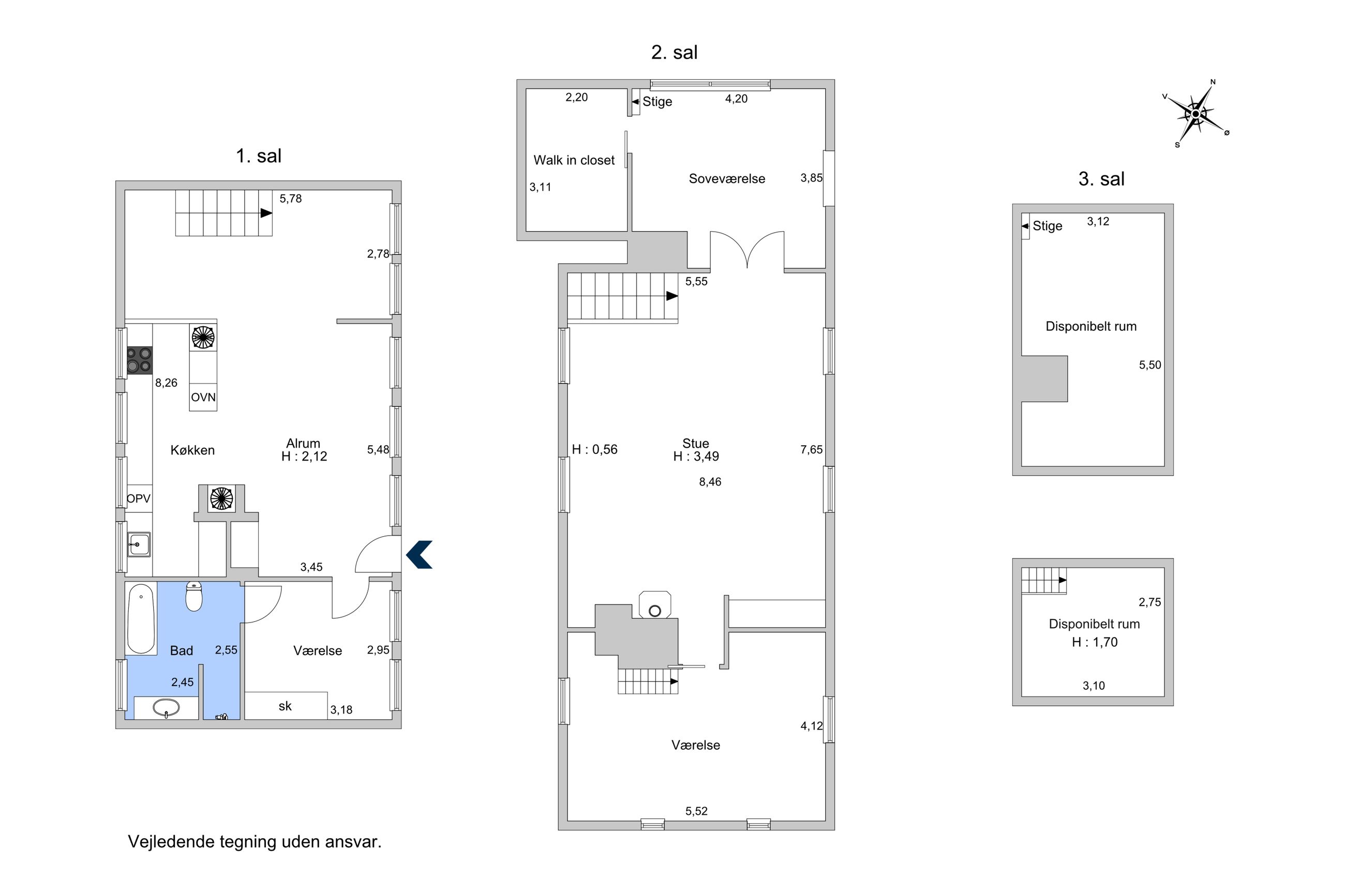
Bondehuset i Teglgårdsstræde 12B er bygget i 1730 og ligger i dag i fred og ro i 2. baggård. Det er ét af de få bindingsværkhuse, der overlevede Københavns brand 65 år senere i 1795. Altså en ældre dame på 296 år, der i dag giver pisserenden en markant charme og et særligt humør. Selvfølgelig er det fredet og fritaget for ejendomsskatter, det manglede da bare. Alt er renoveret, Dinensen plankegulve og individuelt tilpassede vinduer. Med 200 etagemeter, hvor de 22 m2 ligger øverst som 2 disponibelt rum a la hemse, er her den hyggeligste, lukkede gårdhave med ambiance og masser af plads, masser af fugle.
Alt er lige om hjørnet
Pisserenden er et kvarter med masser af liv, med restauranter, caféer, sjove butikker med vintagetøj og genbrug og skæve eksistenser. Men tag ikke fejl, her i enden er der helt stille, kun fuglefløjt og rådhusklokker. Vi ligger op til Nørre Voldgade og lige ved Ørstedsparken, Københavns egen Central Park, og her er der masser af parkeringspladser. Metro den ene vej på Rådhuspladsen, Metro den anden vej til Nørreport. Alt i København er lige om hjørnet, alt er en kort gåtur hjem.
Kontaktperson

Phillip Siesbye
Salg & Vurdering
siesbye@eltoftnielsen.dk
20 20 77 88