Grønholmvej 2, 4340 Tølløse
Landlig idyl og hesteeventyr i Tølløse – med udsigt til Brorfelde ...
Landlig idyl og hesteeventyr i Tølløse – med udsigt til Brorfelde ...
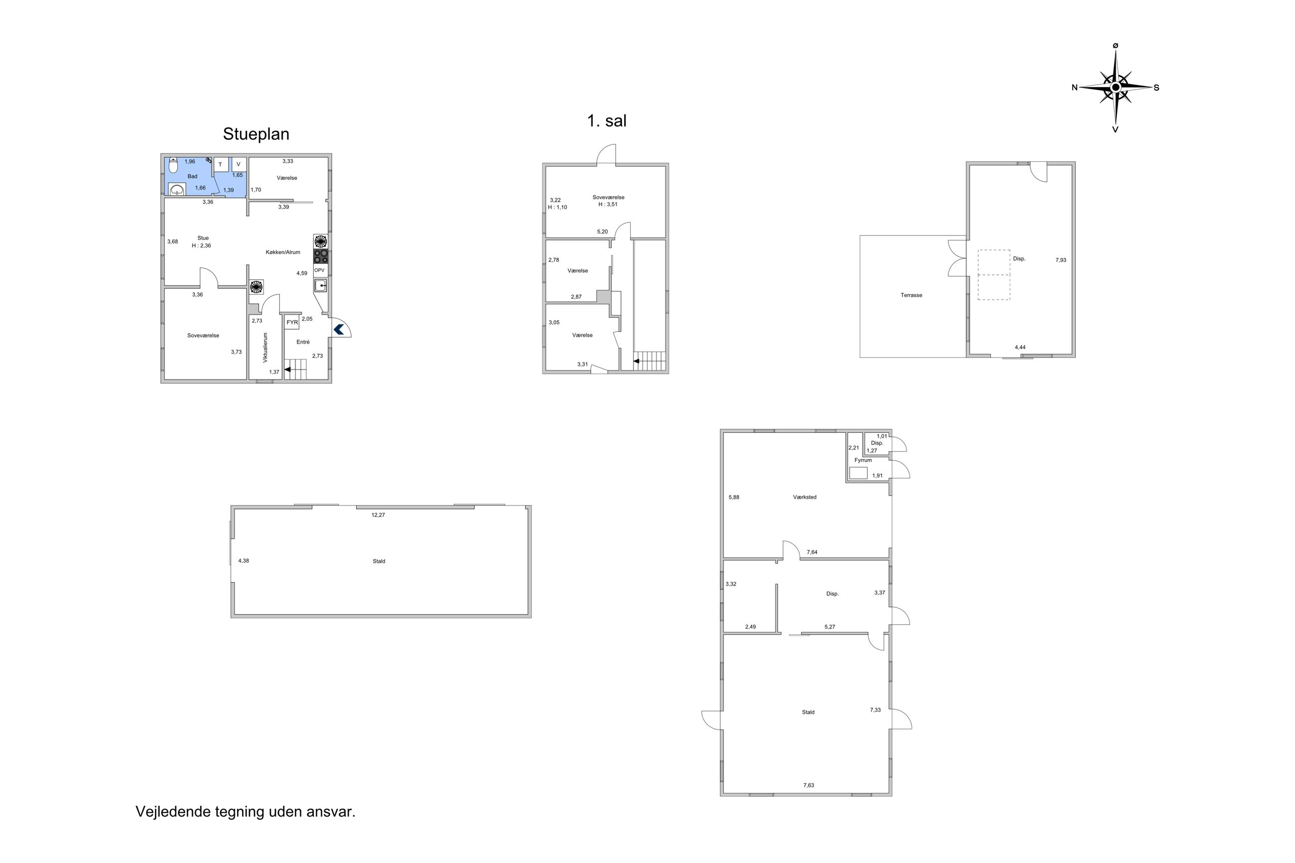
Velkommen til en helt særlig ejendom i Tølløse, hvor landlig charme, hestehold og enestående beliggenhed går hånd i hånd med nærhed til hverdagens bekvemmeligheder. Her bor man i gåafstand til skole, daginstitutioner og indkøb, og cykelstien starter direkte foran ejendommen. Samtidig får man fri udsigt over det smukke bakkelandskab bag Brorfelde og mere end 5 hektar jord til helt og aldeles fri udfoldelse. Grunden er i dag delvist udlagt til muddersikrede hestefolde og ridebane, og resten fungerer som naturskøn herlighedsværdi – perfekt til både hesteentusiaster og naturelskere.
Hovedhuset er bygget i 1922, og alle 125 m2 er renoveret til en bolig anno 2025 med nyt tag, nye vinduer og nye døre. Her er både hulmursisoleret og tilført ekstra indvendig isolering, hvilket gør boligen både komfortabel og energieffektiv. Varmt og rustikt er det hele. Her er havestue med panoramaudsigt over foldene – den er ideel som helårsoase. Og så er der en løsdriftsstald og en stor længe, som i dag bruges til opbevaring, men kan indrettes efter behov. På Grønholmvej får man en sjælden mulighed for at bo naturskønt og praktisk i Tølløse – med både plads til drømme og plads til dyrene.
Tølløse har små 4.000 indbyggere, så det er ikke en stor by, men stor nok til både at have kommune- og privatskole og flere efterskoler. Fra Tølløse tager det 45 minutter med tog til København. Bussen til Ringsted stopper tæt ved Grønholmvej 2. Tølløse er en del af Holbæk Kommune. Byen er omringet af smuk natur, som man fra Grønholmvej nemt kan ride til.
Kontaktperson

Lasse Grønbæk Mathiassen
Ejendomsmægler & diplomvaluar MDE
lasse@eltoftnielsen.dk
30 87 14 93