Dronninggårds Alle 82, 2840 Holte
Her er alt stort. Meget stort...
Her er alt stort. Meget stort...
Husene på de lige numre på Dronninggårds Allé har det til fælles, at de ligger mod Furesøen. Store er de, ejendommene, og de ligger alle på store matrikler ned mod Furesøen. Men af alle ejendommene er der et der stikker hovedet lidt højere op end de andre, og det er Dronninggårds Allé 82. Her er alt stort. Meget stort.
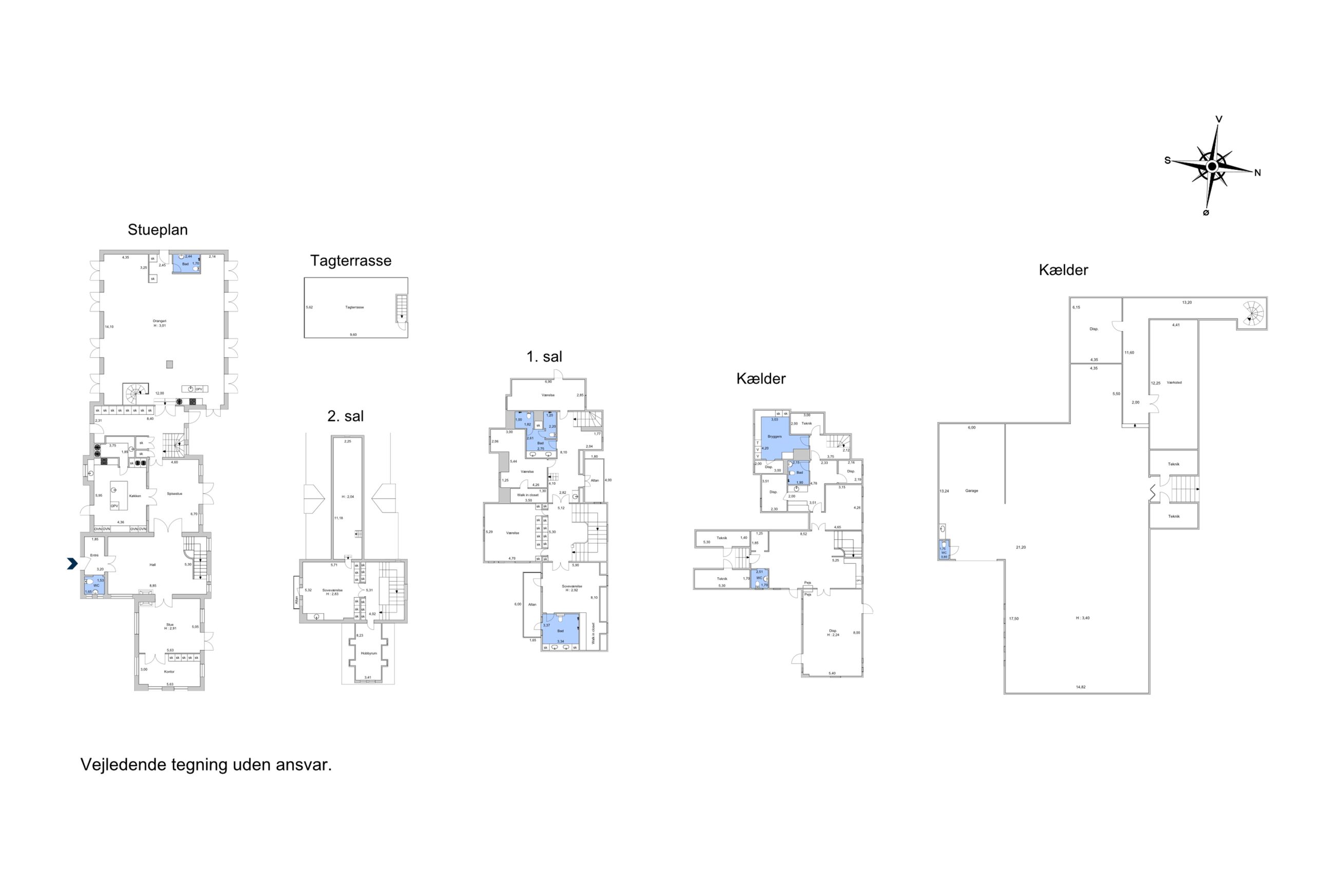
Det fortæller de tørre tal i hvert fald. Grunden er på 6.606 m2 i 1. række til søvandet. Med 620 m2 bolig, skal selv den helt store familie nok finde sig til rette, og er man glad for biler, altså meget glad for biler, ja, så gemmer der sig en parkeringskælder under græsplænen på 465 m2 med plads til 35 biler, værksteder, opbevaringsrum og plads til vinkælder m.m. Ejendommen har de seneste år været under en gennemgribende renovering fra kælder til kvist. Der er etableret jordvarme, indlagt hele 125 Amp og hel ny el og VVS overalt. Den enorme parkeringskælder er nyopført, og ejendommen kan som den står nu erhverves til udbudspris.
Det er en spektakulær ejendom med usædvanlige store rum, højt til loftet og håndværksdetaljer, vi ikke ser nybygget mere. Alle håndværk er repræsenteret og der er kun brugt de bedste materialer, som italiensk marmor, Hørning sildebensparket, indvendige døre og høje paneler snedkeret fra bunden, koblede vinduer og døre fra Linoile Døre og Vinduer, jordvarme, intelligente afbrydere fra Tense, KNX styring via app af alt fra lys og gardiner til pejse, gulvvarme osv. Imponerende håndlavet trappeløb fra kælder til kvist fra Thy Trapper med trin i wenge, belysning fra Anker og Co., messinggreb m.m. fra Søe Jensen, et udsøgt køkken snedkereret fra bunden med de fineste detaljer. Tagterrassen, hvor der er klargjort til udekøkken og spa, er mageløs, ganske enkelt, det samme er udsigten over søen til halvøen Verdens Ende. Endvidere er der i ejendommen lavet klar til 2 stk. pool indenfor, sauna, spa, koldtvandsbassin, boblebad, dampbad og 5 stk. sikringsrum.
Haveanlægget (som netop er påbegyndt) er tegnet af landskabsarkitekt med talrige solrige terrasser, hyggelige ugenerte uderum, smuk beplantning, udekøkkener, bålplads, shelter, fodboldbane, paddle-/tennisbane, løberute, gym, pool, udebrusere osv.
Ejendommene på søsiden af Dronninggårds Allé er nogle af de dyreste ejendomme i Danmark. Dronninggårdskvarteret er et meget stille kvarter med kort cykelvej til dagsinstitutioner og Dronninggårdskolen, en af landets bedste skoler. Holte Midtpunkt med alle indkøb ligger for enden af vejen. Naturelskerne får Næsseskoven, Geelskov, Kollemosen og Malmmosen lige om hjørnet.
Kontaktperson

Ivan Eltoft Nielsen
Ansvarlig indehaver
Ejendomsmægler & valuar MDE
ivan@eltoftnielsen.dk
70 70 20 05