Argusvej 9, Udsholt, 3230 Græsted
Vild med vilje med rådyrøjne og biodiversitet i græsserne.…
Vild med vilje med rådyrøjne og biodiversitet i græsserne.…
For enden af Argusvej, bare sådan 150 meter fra sommerhuset i nummer 9, ligger Udsholt Strand, en af de bedste strande her på den Nordsjællandske kyst. Den er bred, børnevenlig med sand og klitter, strandenge og den smukkeste udsigt over Kattegat. Badebroen ligger få gåminutter fra huset, og området er kendt for sin rolige atmosfære og stærke natur.
Hyggelige havnemiljøer
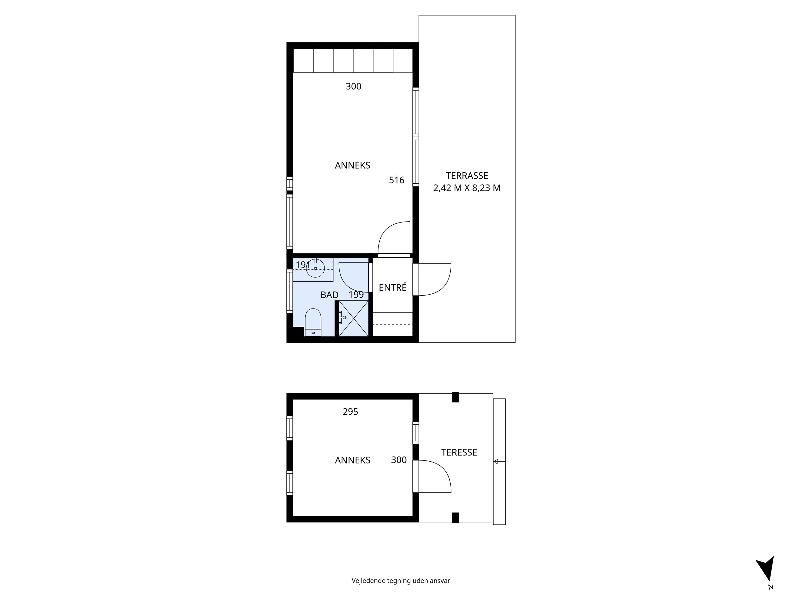
Huset er bygget i 1981, men er inden for de sidste 4 år renoveret med blandt andet nye vinduer og varmepumpe til det lækre sommerhus på 90 m2, det er i dag suppleret af et gæstehus med badeværelse på 30 m² samt et anneks på 14 m². Det samlede boligareal er 134 m2, altså masser af plads til familien med børn og venner på besøg. De separate bygninger giver en fleksibel indretning med gode muligheder for gæster, familie og flere generationer under samme tag, eller for at skabe private zoner, når man er mange samlet.
Stor grund
Vi er i et sommerhuskvarter med det smukkeste lys gennem birketræerne og de mange skovfyr. Grunden er på 7.177 m2, og muligheden for at starte helt forfra og skabe nyt efter egne ønsker er bestemt også til stede. Grunden er for det meste er vild med vilje med rådyrøjne og biodiversitet i græsserne. Her er vildmarksbad, masser af sol og lys ude og inde. Kort vej til indkøb og hyggelige havnemiljøer i Smidstrup eller Gilleleje.
Badebukseperler på en tørresnor
Udsholt Strand er med i den eksklusive forening af de bedste strande på Sjælland. Fra øst mod vest Hornbæk, Dronningmølle, Gilleleje, Smidstrup, Udsholt Strand, Rågeleje, Vejby Strand, Tisvilde, Liseleje, Kikhavn og Hundested. Ikke noget at sige til, at Udsholt er et kendt og elsket sommerhusområde. Udsholt er også kendt for den fredede Skibsredergrund, en 93 hektar fredet naturpark, hvor familien A.P. Møller tidligere havde sommerhus. Området er kendt og værdsat for sine sommerhuse, sin natur og sin ro, og Udsholt Strand er blandt de steder på kysten, hvor mange gennem generationer har valgt at vende tilbage.
Kontaktperson

Lars Lyngholm Eriksen
Indehaver
Ejendomsmægler MDE
lars@eltoftnielsen.dk
60 40 72 92