Amaliegade 13G, st, 1256 København K
Uforskammet lækkert!
Uforskammet lækkert!
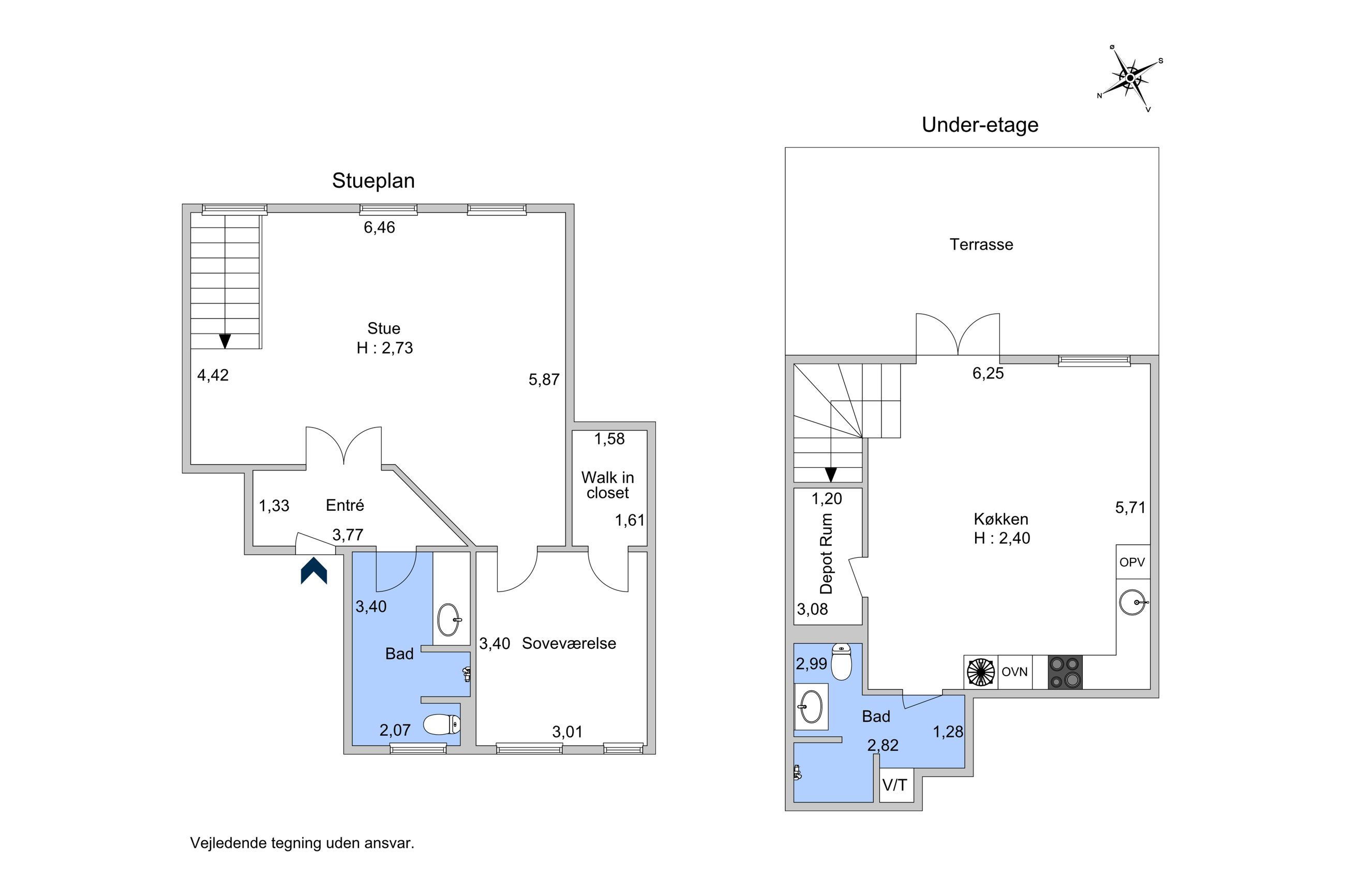
Ejendommen i Amaliegade ligger gemt inde bag porten i det smukkeste palæ i København. Ejendommen er fra 1948, og med 129 m2 fordelt på en overetage og en underetage er lejligheden Amaliegade 13G godt nok en stor lejlighed, men den er indrettet til bohemen, til kæresteri eller det modne par, som gerne
vil til byen og al den ballade, der ligger lige om hjørnet. Stor terrasse. Selv tak. Lejligheden er renoveret i 2014, alt er uforskammet lækkert, alt er lige til at flytte ind i.
Alt i byen er tæt på
Amalienborg deler Amaliegade, herfra er alt i København tæt på. Det gælder de bedste restauranter, caféerne, de lækre butikker, kulturen med gallerierne, balletten i Det Kongelige Teater, skuespillet i Skuespilhuset, Nyhavn, stranden ved Kvæsthusgraven og Kyssetrappen.
Elevator – Ja
Husdyr – Nej
Altan/Terrasse – Ja
Parkering – Ja (På gaden mod betaling/Licens)
Kontaktperson

Allan Høgh
Udlejningschef
allan@eltoftnielsen.dk
20 83 83 18